
아파트와 오피스텔의 법규상 정의에 대해 살펴보자.
아파트
「주택법」 제2조제3호
3. “공동주택”이란 건축물의 벽ㆍ복도ㆍ계단이나 그 밖의 설비 등의 전부 또는 일부를 공동으로 사용하는 각 세대가 하나의 건축물 안에서 각각 독립된 주거생활을 할 수 있는 구조로 된 주택을 말하며, 그 종류와 범위는 대통령령으로 정한다.
「주택법 시행령」 제3조제1항1호
제3조(공동주택의 종류와 범위) ① 법 제2조제3호에 따른 공동주택의 종류와 범위는 다음 각 호와 같다.
1. 「건축법 시행령」 별표 1 제2호가목에 따른 아파트(이하 “아파트”라 한다)
「건축법 시행령」 별표 1 제2호가목
2. 공동주택[공동주택의 형태를 갖춘 가정어린이집·공동생활가정·지역아동센터ㆍ공동육아나눔터ㆍ작은도서관·노인복지시설(노인복지주택은 제외한다) 및 「주택법 시행령」 제10조제1항제1호에 따른 소형 주택을 포함한다]. 다만, 가목이나 나목에서 층수를 산정할 때 1층 전부를 필로티 구조로 하여 주차장으로 사용하는 경우에는 필로티 부분을 층수에서 제외하고, 다목에서 층수를 산정할 때 1층의 전부 또는 일부를 필로티 구조로 하여 주차장으로 사용하고 나머지 부분을 주택(주거 목적으로 한정한다) 외의 용도로 쓰는 경우에는 해당 층을 주택의 층수에서 제외하며, 가목부터 라목까지의 규정에서 층수를 산정할 때 지하층을 주택의 층수에서 제외한다.
가. 아파트: 주택으로 쓰는 층수가 5개 층 이상인 주택
오피스텔
「건축법 시행령」 제 3조의5(용도별 건축물의 종류)
법 제2조제2항 각 호의 용도에 속하는 건축물의 종류는 별표 1과 같다.
「건축법 시행령」 별표 1 제14호 나목의 2)
14. 업무시설
나. 일반업무시설: 다음 요건을 갖춘 업무시설을 말한다.
1) 금융업소, 사무소, 결혼상담소 등 소개업소, 출판사, 신문사, 그 밖에 이와 비슷한 것으로서 제1종 근린생활시설 및 제2종 근린생활시설에 해당하지 않는 것
2) 오피스텔(업무를 주로 하며, 분양하거나 임대하는 구획 중 일부 구획에서 숙식을 할 수 있도록 한 건축물로서 국토교통부장관이 고시하는 기준에 적합한 것을 말한다)
-----------------------------------------------------------------------------------------------------------------------------------------------------------------
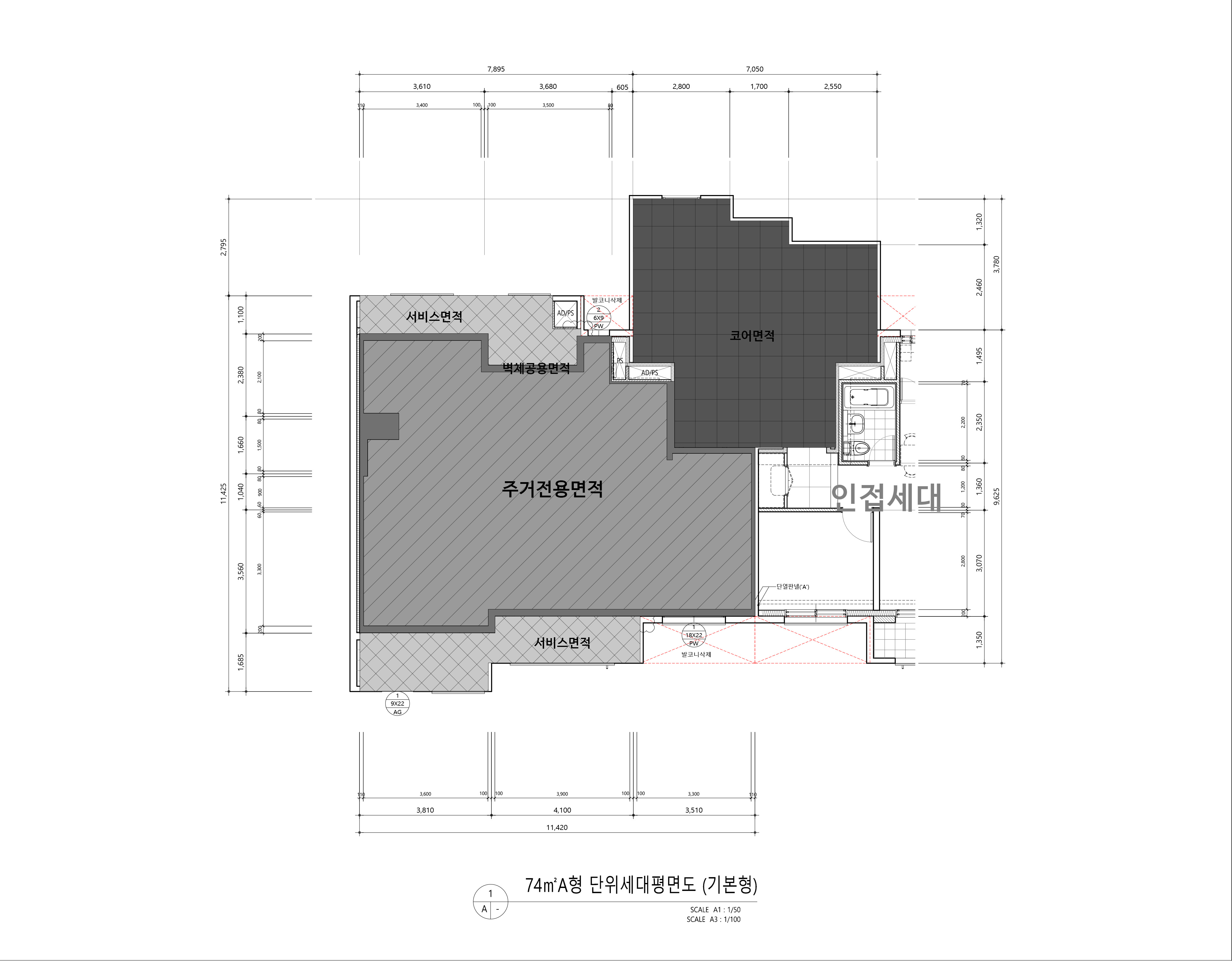
공동주택의 면적기준에 대해 알아보자

주거전용면적
「주택법」 제2조(정의) 제6호
6. “국민주택규모”란 주거의 용도로만 쓰이는 면적(이하 “주거전용면적”이라 한다)이 1호(戶) 또는 1세대당 85제곱미터 이하인 주택(「수도권정비계획법」 제2조제1호에 따른 수도권을 제외한 도시지역이 아닌 읍 또는 면 지역은 1호 또는 1세대당 주거전용면적이 100제곱미터 이하인 주택을 말한다)을 말한다. 이 경우 주거전용면적의 산정방법은 국토교통부령으로 정한다.
「주택법 시행규칙」 제2조(주거전용면적의 산정방법)제2호
2. 공동주택의 경우: 외벽의 내부선을 기준으로 산정한 면적. 다만, 2세대 이상이 공동으로 사용하는 부분으로서 다음 각 목의 어느 하나에 해당하는 공용면적은 제외하며, 이 경우 바닥면적에서 주거전용면적을 제외하고 남는 외벽면적은 공용면적에 가산한다.
주거공용면적
-벽체공용면적
「주택법 시행규칙」 제2조(주거전용면적의 산정방법)제2호
2. 공동주택의 경우: 외벽의 내부선을 기준으로 산정한 면적. 다만, 2세대 이상이 공동으로 사용하는 부분으로서 다음 각 목의 어느 하나에 해당하는 공용면적은 제외하며, 이 경우 바닥면적에서 주거전용면적을 제외하고 남는 외벽면적은 공용면적에 가산한다.
- 코어면적
「주택법 시행규칙」 제2조(주거전용면적의 산정방법)제2호 가목
가. 복도, 계단, 현관 등 공동주택의 지상층에 있는 공용면적
기타공용면적
「주택법 시행규칙」 제2조(주거전용면적의 산정방법)제2호 나목
나. 가목의 공용면적을 제외한 지하층, 관리사무소 등 그 밖의 공용면적
(부대복리시설면적, 설비면적, 지하주차장면적 등 포함)
서비스면적
「건축법 시행령」 제2조 제14호
14. “발코니”란 건축물의 내부와 외부를 연결하는 완충공간으로서 전망이나 휴식 등의 목적으로 건축물 외벽에 접하여 부가적(附加的)으로 설치되는 공간을 말한다. 이 경우 주택에 설치되는 발코니로서 국토교통부장관이 정하는 기준에 적합한 발코니는 필요에 따라 거실ㆍ침실ㆍ창고 등의 용도로 사용할 수 있다.
「건축법 시행령」 제119조 제1항 제3호 나목
나. 건축물의 노대등의 바닥은 난간 등의 설치 여부에 관계없이 노대등의 면적(외벽의 중심선으로부터 노대등의 끝부분까지의 면적을 말한다)에서 노대등이 접한 가장 긴 외벽에 접한 길이에 1.5미터를 곱한 값을 뺀 면적을 바닥면적에 산입한다.



-----------------------------------------------------------------------------------------------------------------------------------------------------------------
오피스텔의 면적기준에 대하여 알아보자
주거전용면적
「오피스텔 건축기준」제2조 4호
4. 전용면적의 산정방법은 건축물의 외벽의 내부선을 기준으로 산정한 면적으로 하고, 2세대 이상이 공동으로 사용하는 부분으로서 다음 각목의 어느 하나에 해당하는 공용면적을 제외하며, 바닥면적에서 전용면적을 제외하고 남는 외벽면적은 공용면적에 가산한다.
주거공용면적
- 벽체공용면적
「오피스텔 건축기준」제2조 제4호
4. 전용면적의 산정방법은 건축물의 외벽의 내부선을 기준으로 산정한 면적으로 하고, 2세대 이상이 공동으로 사용하는 부분으로서 다음 각목의 어느 하나에 해당하는 공용면적을 제외하며, 바닥면적에서 전용면적을 제외하고 남는 외벽면적은 공용면적에 가산한다.
- 코어면적
「오피스텔 건축기준」제2조 제4호 가목
가. 복도ㆍ계단ㆍ현관 등 오피스텔의 지상층에 있는 공용면적
기타공용면적
「오피스텔 건축기준」제2조 제4호 나목
나. 가목의 공용면적을 제외한 지하층ㆍ관리사무소 등 그 밖의 공용면적
-----------------------------------------------------------------------------------------------------------------------------------------------------------------
공동주택과 오피스텔의 분양면적과 전용률 산출방식에 대해 알아보자
공동주택의 경우
「주택공급에 관한 규칙」제21조 제5항
⑤ 제3항제8호에 따라 공동주택의 공급면적을 세대별로 표시하는 경우에는 주거의 용도로만 쓰이는 면적(이하 “주거전용면적”이라 한다)으로 표시하여야 한다. 다만, 주거전용면적 외에 다음 각 호의 공용면적을 별도로 표시할 수 있다.
1. 주거공용면적: 계단, 복도, 현관 등 공동주택의 지상층에 있는 공용면적
2. 그 밖의 공용면적: 주거공용면적을 제외한 지하층, 관리사무소, 노인정 등 공용면적
공급면적= 주거전용면적+주거공용면적(벽체공용면적+세대별코어면적)
계약면적= 공급면적+기타공용면적(부대시설면적+설비면적+지하주차장면적)
전용률= 주거전용면적/공급면적
*서비스면적은 공급면적 및 계약면적 어디에도 산입되지 않음
※분양면적=공급면적
오피스텔의 경우
「건축물의 분양에 관한 법률」제3조 제1항 제2호
제3조(적용 범위) ① 이 법은 「건축법」 제11조에 따른 건축허가를 받아 건축하여야 하는 다음 각 호의 어느 하나에 해당하는 건축물로서 같은 법 제22조에 따른 사용승인서의 교부(이하 “사용승인”이라 한다) 전에 분양하는 건축물에 대하여 적용한다
2. 업무시설 등 대통령령으로 정하는 용도 및 규모의 건축물
(분양면적의 정의는 언급되어 있지 않아 시행사마다 산출방식이 다름, 일반적으로 공급면적에 기타공용면적을 포함하여 계산하고있음)
「오피스텔 건축기준」제2조 제1항
1. 각 사무구획별 노대(발코니)를 설치하지 아니할 것
(오피스텔은 법적으로 발코니를 설치할 수 없기 때문에 서비스면적이 없다)
공급면적= 주거전용면적+주거공용면적(벽체공용면적+세대별코어면적)
계약면적= 공급면적+기타공용면적(부대시설면적+설비면적+지하주차장면적)
전용률= 주거전용면적/계약면적
※분양면적=계약면적
-----------------------------------------------------------------------------------------------------------------------------------------------------------------
최종정리
| 아파트 | 오피스텔 | |
| 근거법 | 주택법 | 건축법 |
| 실사용면적 | 전용면적+서비스면적 | 서비스면적 X |
| 분양면적 | 공급면적(전용+주거공용) | 계약면적(공급+기타공용) |
| 전용률 | ±80% | ±50% |
아파트와 오피스텔이 같은 전용면적을 가졌더라도 실사용면적에서 차이가 발생하는 이유는 분양면적
기준이 다르기 때문이다. 아파트는 주택법에 따라 공급면적을, 오피스텔은 건축법에 따라 계약면적이
분양면적으로 표시한다. 계약면적은 앞서 언급한 공급면적에 지하층, 관리사무소 등 기타 공용면적이
각 세대별 전용비율에 따라 나눠져 더해지므로 오피스텔의 전용률이 아파트에 비해 낮아져 실사용
면적이 작아지게 되는 것이다.
또 다른 이유로는 아파트에는 서비스면적으로 제공되는 발코니가 오피스텔에는 거의 없는 이유이다.
아파트의 경우 대부분 발코니 확장을 하기 때문에 확장을 통해 제공되는 실사용 면적이 25m² ~ 40m² 정도 추가된다.
마지막으로 2015년 4월30일 이전에 건축허가를 받은 오피스텔의 경우 벽체 중심선을 기준으로 전용
면적을 계산해왔다. 그래서 안목치수로 전용면적을 계산하는 아파트에 비해 벽체 두께의 절반만큼 실
사용 면적이 줄어들게 된다.
다만 2015년 4월 30일 이후로 건축허가를 받은 오피스텔은 아파트와 같이 안목치수로 전용면적을
계산한다.
-----------------------------------------------------------------------------------------------------------------------------------------------------------------
+면적산정 작성방법에 대해 알아보자
전용면적
- 단위세대 전체 전용면적 산출(소수점 넸째자리로 표기)
각 실 면적합이 단위세대 전체 전용면적과 동일하도록 조정(각 실별 반올림, 버림 등 사용)
발코니면적 산출(세대측은 중심선기준, 외벽측은 끝선기준)
PD 면적은 산축은 하지만 바닥면적에서는 제외
벽체공용면적
단위세대 중심선으로 면적산출
벽체공용면적 산출방식= {(단위세대 중심선면적-단위세대 전용면적)-PD중심선 면적}
공용면적
ELEV홀, 계단실, 복도 등 공용 각 부위별로 산출
PD, AD, AV, ST, EPS/센 등 면적 산출 후 공용면적에서 제외
동일만 면적의 층 범위별로 1개층 분에 대한 면적산출
ELEV홀, 계단실, 복도 등 공용 각 부위별로 합산한 공용면적으로 산출
건축면적
1. 단위평면별 건축면적 산정(PD면적 포함산출)
-단위세대 중심선면적산출 (단열재가 설치된 외벽 층 내측 내력벽의 중심선을 기준으로 산정)
-발코니면적산출
-단위세대 중심선 면적과 발코니 부분의 면적을 합산하여 건축면적으로 산정
2. 공용부위 건축면적 산정
-공용면적+PD,ST 등 설비면적
-캐노피 건축면적 산입 (처마가 기둥 중심에서 1m이상 돌출될 경우 캐노피끝선에서 1m 후퇴하여
산정)
부대복리시설
-중심선 면적산출(PD면적 등 제외)
-주동에 통합되어 계획된 경우 건축면적은 아파트분의 건축면적을 제외한 나머지 면적만
건축면적으로 산입
1. 주민공동시설, 기계/전기실 등
-관리사무소, 경로당, 어린이집, 실내운동시설, MDF실, 기계실, 전기실 등 시설별 면적산출 –주동에
포함되어 계획된 경우 아파트 기준층 중심선에 의한 각 실 면적산출
2. 근린생활시설
-면적 산출시 중심선은 창호가 설치될 경우 창호의 중심으로 설정
3. 지하주차장
-면적에 산입되는 범위 : 주차 및 차로부분, 경사로, 계단실, 아파트 코어
휀룸 및 제연휀룸, 전기실, 기계실, 용역원실, 세대창고등 사용하는 실 -면적에 산입 제외 : 저수조,
DA (제연, 제연휀룸), PIT
-----------------------------------------------------------------------------------------------------------------------------------------------------------------
'기타 프로젝트 > 건축법규' 카테고리의 다른 글
| 하향식 피난구를 적용한 대피공간 통합 실외기실의 면적 및 치수에 관한 법규정리 (3) | 2023.12.11 |
|---|---|
| 공중화장실 관련 법규를 알아보자 (2) | 2023.08.01 |
| 일조권에 대해 알아보자 (정북일조, 채광일조, 인동간격) (1) | 2023.06.27 |
| 공동주택의 주차장에 대해(법규정리) (1) | 2023.06.09 |