2011년, 건축계의 노벨상이라 불리는 프리츠커상 수상자인 '소토 무라(Souto de Moura)'의 전시가 서울도시건축전시관에서 열렸다. 평소 소토 무라의 관한 건축은 몰랐다고 봐도 무방했다. 하지만 프리츠커 수상자의 작품과 프로세스를 볼 수 있는 기회는 좋은 경험이기에 전시를 관람하러 가게 되었다.
전시의 주제는 '건축가의 여정'이었다. 소토 무라의 40여년간의 건축 일대기를 보여주는 시간을 가지고자 한 것으로 보인다. 그의 건축의 표현들이 전시가 되어있어 관람을 했다.


소토 무라는 포르투칼의 건축가로서 알바로 시자 사무소에서 건축을 시작했다고 알려져 있다. 2011년에 프리츠커 상을 수상하며 알바로 시자와 함께 프리츠커상을 받은 포르투칼의 두 번째 수상자가 되었기도 하다.
소토 무라는 포르투칼의 지역 전통성을 지니면서도 세계적으로 건축을 하기 시작하며 그와는 대조되는 건축성도 보여주었다. 또한 에너지나 자원, 사회적 문제들에 대해 고심하는 건축가 이기도 하다. 이러한 소토 무라의 건축성으로 인해 의뢰를 받게 되는 프로젝트들도 있게 된다.


첫 작품은 '브라가 시장(Municipal Market of Braga)'였다. 소토 무라가 건축 초기에 시작했으나 30년이라는 장기간의 프로젝트였으며, 일반적인 시장과는 다르게 문화공간으로 변모하는 것이 특징인 작품이다.


도면과 사진에서 알 수 있듯이 그의 모던한 스타일이 그대로 드러났다. 일반적인 시장의 장터 모습보다는 정리가 된 깔끔한 공간들에 소통과 활동이 이루어질 수 있는 공간을 조성하여 문화공간으로서의 역할을 할 수 있도록 한 점이 돋보였다. 또한 열주가 있는 공간은 열주가 지붕을 들어 올려 벽과 지붕 사이로 빛이 들어오는 느낌을 조성한 것이 대단해 보였다. 또한 기존 지형에서 크게 벗어나지 않고 자연에 순응하는 듯한 형태를 보여주고 있는 것으로 보였다.

다음 작품은 '알카네나 주택(House in Alcanena)'이다.



포르투칼 중부의 주택이다. 세 개의 볼륨을 각각 용도를 구분하는 점이 이 주택의 특징이다. 또한 각 공간들을 중정과 같은 형태로 묶어 주게 된다. 그리고 주택이 위치한 장소가 앞의 작물들을 내려다볼 수 있는 등고에 올라가 있는 점 또한 흥미로운 점이었다.

다음 작품은 '아베이루대학교 지구 과학부(Geosciences Department of the University of Aveiro)'이다.


아베이루대학교의 지구 과학부 건물은 정말 모던함을 보여주는 것 같다. 중복도를 두고 양쪽에 동일한 매스가 붙는 형태를 띠고 있다. 공간들은 각 스튜디오에 맞춰서 분할이 되어있으며 입면은 정확히 층별로 3 등분된 비례를 보여주고, 수평 띄들이 창을 감싸고 있는 모습을 보여준다. 정말 정교하면서도 단순한 건축물의 모습을 보여주는 것이 아닐까 생각이 든다.

다음 작품은 '불고 타워(Burgo-Trade and Office Building)'이다.



불고타워는 정말 정형적인 모던한 오피스의 모습을 보여주는 것이 아닐까 생각이 된다. 층별의 다른 모습이나 구분은 전혀 없다. 전 층이 똑같은 층고와 형태로 구성되어서 건물을 볼떄는 정말 하나의 박스 그 자체로 보이는 모습을 보인다. 입면에는 외관의 재료가 강철 프로파일을 노출시켜 프레임 틀이 있는 특징을 보여준다. 이러한 강철과 같은 재료는 포르투칼의 주 재료이기도 하다.

다음 작품은 '몰레도 주택(House in Moledo)'이다.


몰레도 주택은 계단 같은 자연 지형에 순응하여 자연스럽게 얹혀있는 모습이 특징이다. 또한 주택에서 트인 풍경을 바라볼 수 있는 점은 이 주택에 가장 큰 묘미이지 않을까 생각된다.

다음은 '포즈 투아 수력 발전 댐(Foz Tua Hydroelectric Dam)'이다.



이 댐이 위치한 알토 도우 지역은 문화경관 부문에서 유네스코 세계유산에 등재될 만큼 자연적으로 가치가 있는 지역이다.
수력발전소의 건설은 자연환경에 미칠 영향이 존재했고, 그런 영향을 최소화하기 위해 소토 무라에게 프로젝트가 제안이 갔다. 평소 자연요소를 중요시하는 그의 건축관이 빛을 발하는 하나의 작품이지 않았을까 생각된다.


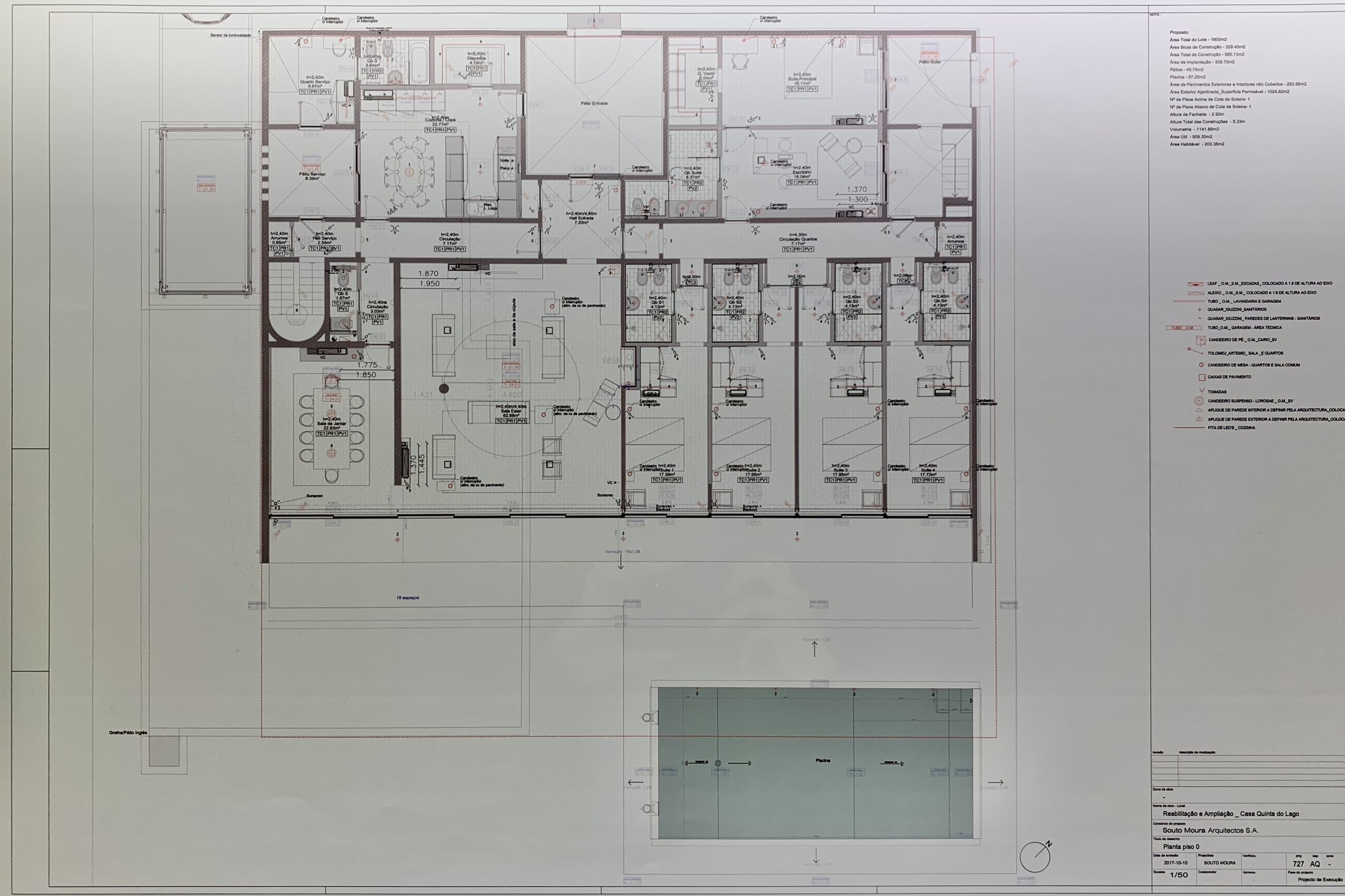
다음 작품은 '퀸타 두 라고 주택(House in Quinta do Lago)'이다.



이 주택은 형태에서부터 눈길을 끈다. 원, 삼각형, 사각형을 모두 쓴 건물로써 형태가 다양하게 나타나기 때문이다. 하지만 여기서 흥미로웠던 점은 평면에서 볼 때는 이러한 점을 느낄 수가 없었다. 평면적으로는 리조트의 용도에 맞게 정형적으로 풀어있는 모습이었기 때문이다. 하지만 단면을 보았을 때 공간감은 그 형태에 맞게 다양하게 나타나는 모습을 볼 수 있어 흥미로운 점으로 보인다.

다음은 작품은 '브라가 경기장(Stadium of Braga)'이다.



소토 무라에게 국제적인 명성을 안겨준 작품이다. 실제 소토 무라가 프리츠커상 시상 당시 버락 오바마 대통령의 축하연설에서도 그의 제일 유명한 작품으로 언급되었기도 하다. 이 경기장 또한 과거 채석장 부지를 활용하며 자연환경을 최대한 보존한 것이 드러나며, 지붕을 강철줄로 연결하는 구조를 사용하여 캐노피와 같은 지붕을 연출해 낸 것이 특징이다.

다음 작품은 '비아나 두 카스텔로 다목적 파빌리온(Multipurpose Pavilion in Viana do Castelo)'이다.



문화, 스포츠 행사를 위한 다목적 문화센터이다. 항구도시에 위치해 있어서 바다를 바로 면하고 있는 환경을 가지고 있다. 또한 구조와 설비를 그대로 노출시킨 것이 이 건물에 제일 큰 특징이 아닐까 생각된다. 여기서 노출된 요소들을 하나의 깔끔한 색으로 노출시켜서 다양한 요소임에도 너무 난잡해 보이지 않고 하이테크 건축의 모습으로 보이는 게 아닐까 생각된다.

다음 작품은 '파울라 헤고 박물관(Casa das Histórias Paula Rego)'이다.



포르투갈의 대표적 미술과 파울라 헤고 가 직접 부탁한 그의 미술관이다. 지역의 건축물들과 역사적 특징을 현대적 해석해 표현한 것이 특징이다. Cascais 지역이 붉은색 지붕을 많이 사용하는데, 그런 점을 현대적으로 해석하여 붉은색 콘크리트로 마감을 하지 않았을까 생각이 된다.

다음 작품은 '베르나르다스 수도원 개축(Reconversion of the Vernardas Convent)'이다.


기존의 수도원, 공장 등 을 재건한 프로젝트다. 수도원이나 공장이라는 시설 자체가 재사용하기에는 쉽지 않았을 것으로 생각한다. 하지만 호텔, 박물관, 문화센터와 같은 용도로 사람들이 쉽게 올 수 있는 건축물로 재건을 했다는 점에서는 대단한 점으로 보인다.

마지막 작품은 '2018 베니스 비엔날레를 위한 바티칸 예배당(Vatican Chapel for the Venice Biennale 2018)'이다.


베니스 비엔날레 국제건축 전에 설계된 '경배의 공간' 중 하나이다. 크지 않은 실내에서 정적인 느낌을 부여받고, 정면으로 빛이 새어 들어오며 보이는 울창한 숲은 가히 일품인 것 같다. 이러한 요소들로 인해서 경건한 분위기를 연출할 수 있을 것으로 보인다.

소토 무라는 국내에서 크게 인지도가 있는 건축가가 아니다 보니 그의 건축관이나 작품들을 모르는 경우가 많다. 나 역시 아는 점이 없었다. 하지만 그의 작품들을 보고 그의 모던한 건축 성향과 디테일들의 좋은 영감과 생각들을 하고 가게 된다.
또한 건축가들의 전시나 공유의 장이 현재는 그렇게 많지 않다. 최근 안도 다다오의 전시도 뮤지엄산에서 열리고 있지만, 더 많은 것들이 열려서 대중과 사회에서 건축에 대한 관심도가 높아지고 건축 문화가 바뀌길 소원한다.
전시장의 모든 작품을 리뷰하다 보니 글이 길어졌던 점을 양해드린다. 거장들의 전시는 쉽게 있는 기회가 아니기 때문에 보고 느낀 점을 더 많이 공유하고 싶었던 점에서 비롯된 것으로 좋게 봐주시길 바란다.
긴 글 읽어주셔서 감사합니다.
'보는 프로젝트(여행) > 건축 전시' 카테고리의 다른 글
| 2024 건축가 드로잉전 (1) | 2024.01.29 |
|---|---|
| 2023 대한민국 건축문화제_도시건축의 미래변환 (2) | 2023.12.17 |
| 네옴 전시회(Discover NEOM: A New Future by Design) (3) | 2023.08.06 |